Stadt Esslingen am Neckar

Stadt Esslingen am Neckar

Stadtplanungs- und Stadtmessungsamt                                                              29.11.2011

 

Sachbearbeiter/in:

Ruth Clemens-Martin

 

                                                                                                                   61/442/2011

 

V O R L A G E

 

 

 

 

 

 

Ausschuss für Technik und Umwelt

05.12.2011

 

 

Betreff: Bebauungsplan Im Bregel 6 im Planbereich 24 „Krummenacker“ und Satzung über örtliche Bauvorschriften
hier: Aufstellungsbeschluss und Vorentwurf sowie Anwendung des beschleunigten Verfahrens gemäß § 13a BauGB

 

 

I. Antrag

 

 

  1. Die Aufstellung des Bebauungsplanes Im Bregel 6 im Planbereich 24 „Krummenacker“  gemäß § 2 Abs. 1 Baugesetzbuch wird beschlossen.
    Maßgebend für den räumlichen Geltungsbereich ist der Plan des Stadtplanungs- und Stadtmessungsamtes vom 10.11.2011.

 

  1. Die Aufstellung einer Satzung über örtliche Bauvorschriften gemäß § 74 Landesbauordnung wird beschlossen. Der räumliche Geltungsbereich der örtlichen Bauvorschriften erstreckt sich auf den Geltungsbereich des Bebauungsplanes Im Bregel 6 im Planbereich 22 „Krummenacker“ mit Plan vom 10.11.2011.

  2. Das Verfahren wird im beschleunigten Verfahren nach § 13 a BauGB durchgeführt, da der Bebauungsplan der Innenentwicklung dient (d. h. ohne Durchführung einer Umweltprüfung nach § 2 Abs. 4 BauGB).

 

  1. Der Bebauungsplan-Vorentwurf Im Bregel 6 im Planbereich 22 „Krummenacker“ nach dem Plan des Stadtplanungs- und Stadtmessungsamtes vom 10.11.2011 mit seiner Begründung gleichen Datums, den Vorentwurfsplänen des Architekturbüros Gisela Schäffer sowie die Satzung über örtliche Bauvorschriften (Vorentwurf) nach § 74 Landesbauordnung vom 10.11.2011 werden zur Kenntnis genommen.

  2. Auf der Grundlage des Bebauungsplan-Vorentwurfes und der örtlichen Bauvorschriften wird die Beteiligung der Öffentlichkeit an der Bauleitplanung im Sinne des § 3 Abs. 1 Baugesetzbuch durchgeführt. 

 

 

II. Haushaltsrechtliche Deckung

 

Finanzielle Auswirkungen:

 

entfällt

 

Deckungsvorschlag:

 

entfällt

 

 

III. Folgekosten

 

Folgekosten entstehen erst, wenn die Planung umgesetzt/realisiert wird; die hierfür anfallenden Kosten und Folgekosten entstehen dann beim jeweiligen Fachamt.

 

 

IV. Begründung

 

 

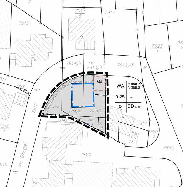
1     Abgrenzung und Beschreibung des Plangebietes

Das Plangebiet mit einer Größe von ca. 620 m² liegt im Esslinger Stadtteil Krummenacker. Es befindet am nördlichen Ende der Straße Im Bregel und umfasst die Flurstücke 7818, 7914/2, 7914/3, 7913/2, 7913/3 und 7913/4. Die Flächen werden derzeit als Wiese genutzt. Unmittelbar östlich angrenzend befindet sich das Sängerheim des Sängerbundes RSK; südlich grenzt eine bis zu 9-geschossige Wohnbebauung an.

Für das Plangebiet gilt bisher der Bebauungsplan Gollenstraße (in Kraft getreten am 05.11.1970), wonach die Flurstücke Nr. 7913/2, 7914/2 und 7818 als öffentliche Parkplätze bzw. Verkehrsgrünfläche festgesetzt sind, die jedoch nie als solche ausgeführt wurden. Die drei Flurstücke 7914/3, 7913/3 und 7913/4 sind dagegen im rechtskräftigen Bebauungsplan als Baugrundstücke festgesetzt.

Die als öffentliche Verkehrsflächen festgesetzten Flurstücke 7818, 7914/2, 7913/2 befinden sich bisher in Privatbesitz und sollen von der Stadt Esslingen erworben werden. Die drei Flurstücke 7914/3, 7913/3 und 7913/3, die als Baugrundstück festgesetzt sind, befinden sich in Privatbesitz.

 

2                     Erforderlichkeit der Aufstellung des Bebauungsplanes

           
Nach derzeitigem Planungsrecht ist auf den Flurstücken 7818, 7914/2 und 7913/2 nur die Errichtung von öffentlichen Parkplätzen zulässig. Die Realisierung von öffentlichen Parkplätzen auf diesen Flurstücken ist jedoch auch in Zukunft nicht erforderlich; stattdessen entspricht es vielmehr den aktuellen städtebaulichen Zielen, diese Fläche einer baulichen Entwicklung zuzuführen und hier – zusammen mit den drei Flurstücken 7914/3, 7913/3 und 7913/4 - ein Baugrundstück zur Errichtung eines Wohngebäudes festzusetzen.

Der bisherige Eigentümer der o.g. Flurstücke äußerte gegenüber der Stadt schon vor längerem den Wunsch, diese Flurstücke mit einem Wohngebäude überbauen zu dürfen und hat hierzu vom Architekturbüro Schäffer Pläne zur Errichtung eines Einfamilienhauses anfertigen lassen. Um eine Bebauung des Grundstückes zu ermöglichen, ist daher die Änderung des seither rechtskräftigen Bebauungsplanes erforderlich.

 

Um auch künftig die Notwendigkeit von Eingriffen in die freie Landschaft so gering wie möglich zu halten, ist es notwendig, die innerhalb der Siedlungsfläche vorhandenen Baulandpotentiale zu nutzen. In diesem Sinne ist es vertretbar und sinnvoll, innerhalb des Plangebietes auf den Grundstücksflächen eine maßvolle Bebauung zu ermöglichen.


Da es sich bei diesem Bebauungsplan um die erstmalige bauliche Entwicklung einer Fläche handelt, die bereits voll erschlossen ist, greift hier der Grundsatzbeschluss des Gemeinderates vom 21.07.2008 (Vorlage Nr. 61/198/2008), wonach solche Flächen künftig nur zu Bauland entwickelt werden, wenn die Grundstücke sich im Eigentum der Stadt Esslingen befinden. Zu diesem Zweck werden die Flurstücke 7913/2 und 7914/2  vom Liegenschaftsamt erworben (siehe Vorlage 23/179/2011) und werden nun zusammen mit dem städtischen Flurstück 7818 zu Bauland entwickelt, wobei die Stadt Esslingen sämtliche Entwicklungskosten trägt. Dem bisherigen Eigentümer wird in dem Grundstückskaufvertrag ein Ankaufsrecht eingeräumt, das er nach Inkrafttreten des Bebauungsplanes ausüben kann und die Flurstücke 7913/2, 7914/2 und 7818 von der Stadt zum Preis von Bauland erwerben kann. Von den Grundstückseinnahmen führt die Stadt 30.000 € dem städtischen Ökokonto zu, um an anderer Stelle geeignete ökologische Maßnahmen durchführen zu können.

 

 

3          Städtebauliche Planung

 

Planerische Grundlage des Bebauungsplanes sind die Vorentwurfspläne des Architekturbüros Schäffer vom 19.10.2011. Dieser Entwurf sieht die Errichtung eines Wohngebäudes mit einer Doppelgarage vor, das an der Straße Im Bregel errichtet wird und sich in Kubatur und Ausrichtung des Gebäudes der umgebenden Wohnbebauung anpasst.

 

Das Wohnhaus erscheint bergseitig als 1-geschossiges Gebäude mit ausgebautem Dachgeschoss; aufgrund der Hanglage tritt das Untergeschoss talseitig als weiteres Geschoss in Erscheinung. Die Erschließung des Wohngebäudes erfolgt über die Straße Im Bregel. Die erforderlichen Stellplätze werden in einer Doppelgarage nachgewiesen, die östlich vom geplanten Wohngebäude errichtet wird und direkt über die Straße Im Bregel angefahren wird.

 

Entsprechend den Festsetzungen der angrenzenden Baugebiete wird für das Baugrundstück eine GRZ von 0,25 festgesetzt. Statt der Festsetzung einer GFZ wird die absolute Firsthöhe festgesetzt, so dass sichergestellt ist, dass – in Zusammenhang mit der Definierung der überbaubaren Grundstücksflächen - eine maßstäbliche Bebauung auf dem Grundstück realisiert wird. Das Dach ist als Satteldach mit einer möglichen Dachneigung von 30 – 40° auszuführen.

 

 

4          Bebauungsplan der Innenentwicklung


Am 01.01.2007 trat das Gesetz zur Erleichterung von Planungsvorhaben für die Innenentwicklung der Städte in Kraft, mit dem die Vorschriften des Baugesetzbuches geändert und ergänzt wurden. Gemäß § 13a Abs. 1 Baugesetzbuch kann nun ein Bebauungsplan für die Wiedernutzbarmachung von Flächen, die Nachverdichtung oder andere Maßnahmen der Innenentwicklung (Bebauungsplan der Innenentwicklung) im beschleunigten Verfahren aufgestellt werden. Hierfür gelten die Vorschriften über das vereinfachte Verfahren nach § 13 Baugesetzbuch. Darüber hinaus ist die Durchführung des beschleunigten Verfahrens gemäß § 13a BauGB davon abhängig, dass bestimmte Flächengrößen nicht überschritten werden (Grundfläche max. 20.000 m²), dass keine FFH-Gebiete oder europäische Vogelschutzgebiete gemäß § 1 Abs. 6 Nr. 7b BauGB tangiert sind und dass eine Umweltverträglichkeitsprüfung gemäß UVP-G nicht erforderlich ist.

 

Bei der Aufstellung dieses Bebauungsplanes, der über eine Nachverdichtung zusätzlichen Wohnraum zur Versorgung der Bevölkerung schafft,  sind die o. g. Voraussetzungen erfüllt, so dass Umweltprüfung, Umweltbericht und Monitoring nicht erforderlich sind.

 

 

            Weitere Ausführungen erfolgen im mündlichen Vortrag.
 

 

 

 

 

Amtsleiter                               Dezernent                             

 

Anlagen:                                

- Lageplan zum Bebauungsplan-Vorentwurf vom 10.11.2011

- Vorentwufspläne (Seitenansicht, Grundriss EG) zur Neubebauung vom Architekturbüro

  Gisela Schäffer vom 19.10.2011

Stadt Esslingen am Neckar                                                                                  Anlage 1

Stadtplanungs- und Stadtmessungsamt

 

Plan zum Aufstellungsbeschluss und Vorentwurf

 

Bebauungsplan Im Bregel 6 im Planbereich 24 „Krummenacker“ und zur Satzung über örtliche Bauvorschriften

 

 

 

 

 

 

 

 

 

 

 

 

 

 

 

 

 

 

 

 

 

 

 

 

 

 

 

 

 

 

 

 

 

 

 

 

 

 

 

Esslingen am Neckar, den 29.11.2011


Anlagen:

Nicht alle Anlagen sind öffentlich. (Internet)